
First, second, and third floor are leased until August 2026
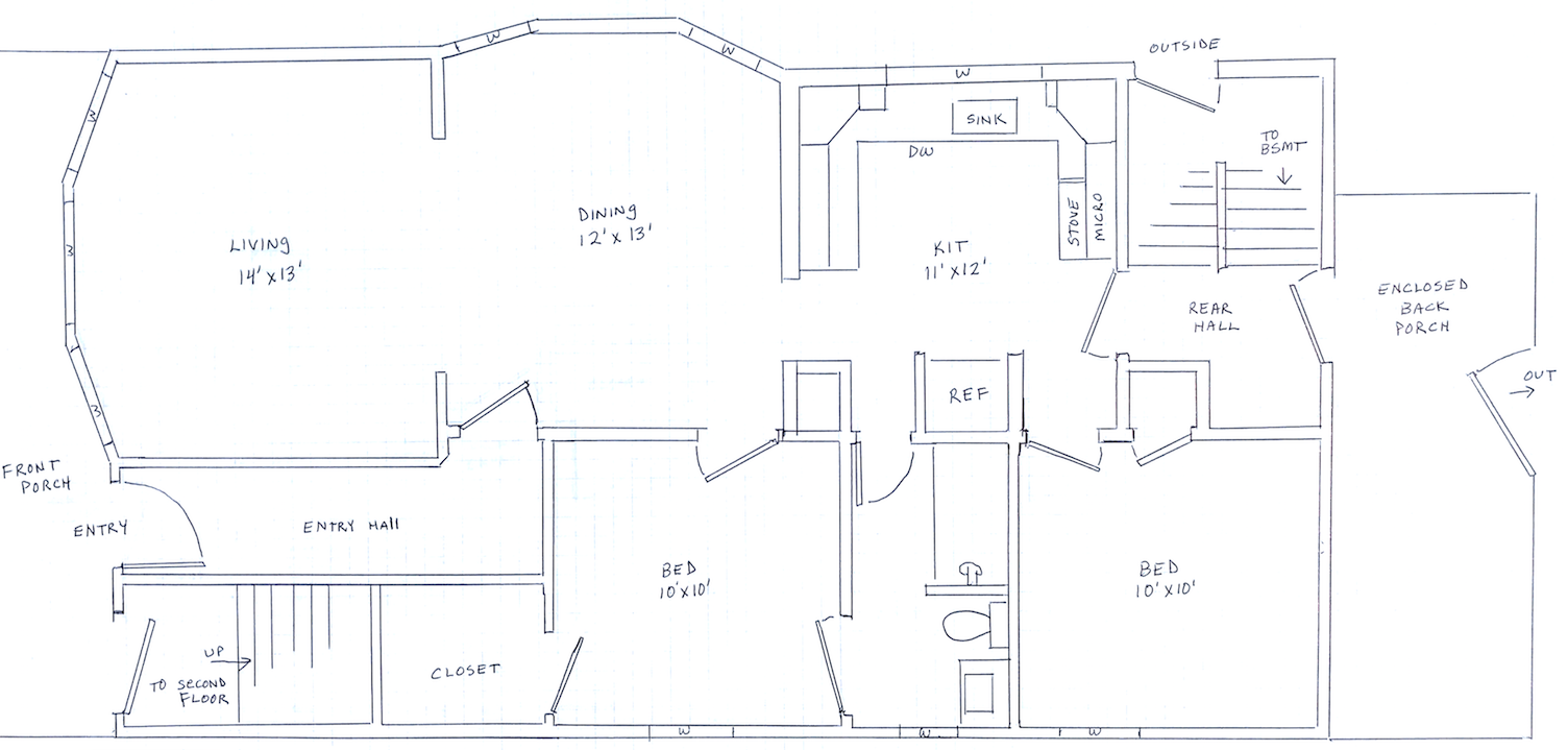
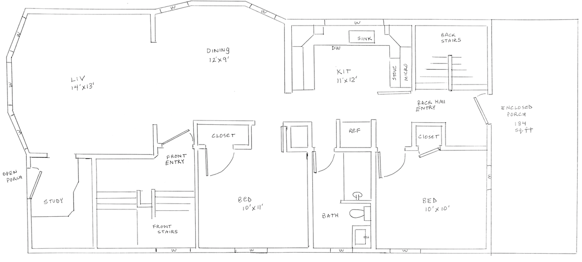
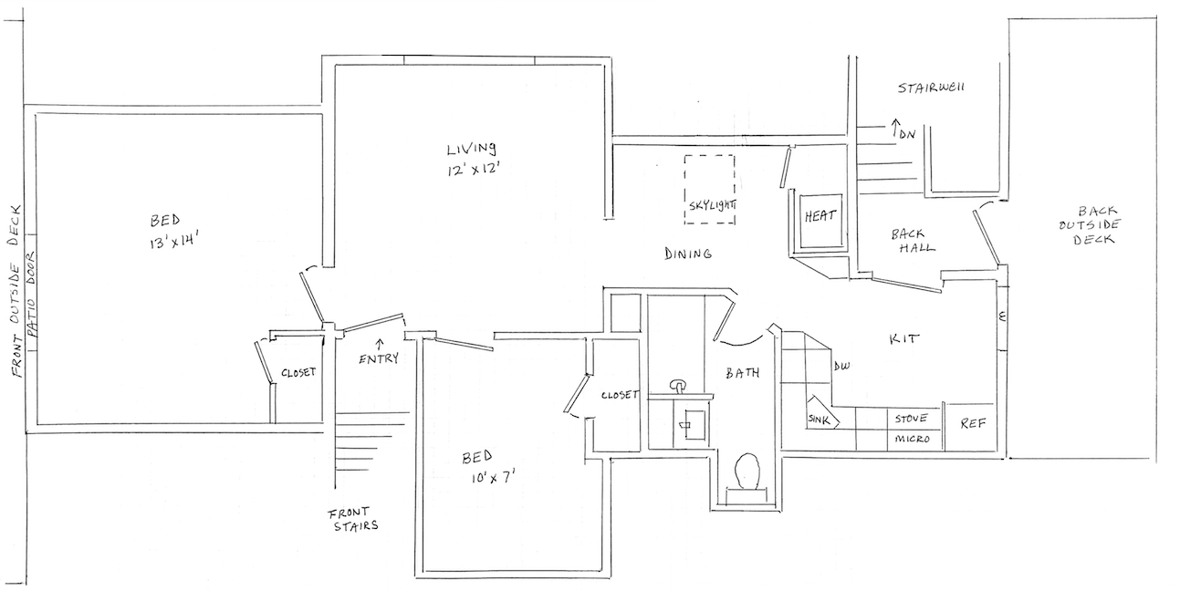
The property was built 1900, and features 3 flats with completely new infrastructure (HVAC, plumbing, insulation, windows). Two are approximately 1000 square feet, with the top floor apartment at 700 square feet).
Each flat new kitchens, new bathrooms, and each has original maple floors (ceramic in the kitchen and bath), 2 bedrooms and one bath with a private front and back porch. All have central air.
There is free laundry in the building.
GOOGLE MAP for this rental: CLICK HERE
Apartment 1 – 2 Bed / 1000 SqFt










2nd Floor – 2 Bed / 1000 SqFt










3rd Floor – 2 Bed / 709 SqFt










